Bory

miesto: Bratislava / úžitková plocha: 96 m2

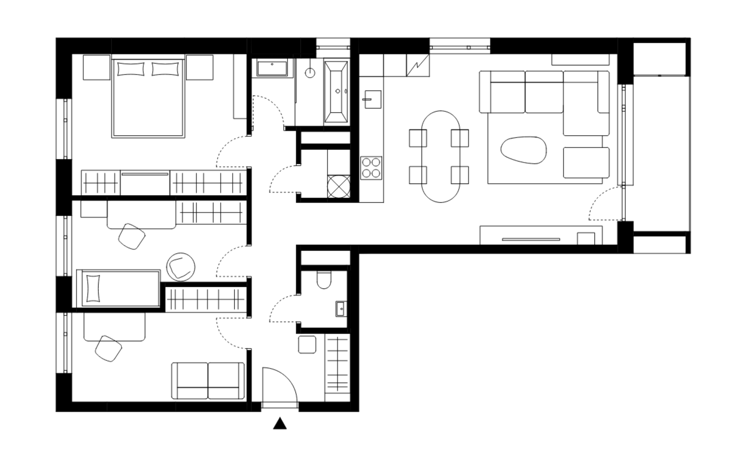
Bývanie v novostavbe pre mladú rodinu. Byt bol pôvodne v štandarde, ktorý však pôsobil zastaralo a lacno. V kúpeľni bola osadená iba vaňa, čo sa pre potreby rodiny ukázalo ako nedostatočné. Dilemu, či zachovať vaňu alebo sprchu, sme vyriešili kompromisom – po rekonštrukcii kúpeľňa obsahuje oboje. Zvyšok sa už následne zariaďoval a dolaďoval do jednotného konceptu.

Interiér je ladený do tónov, ktoré sa prirodzene prelínajú celým bytom. Lokálne zníženie stropu v obývačke umožnilo viesť rozvody vzduchotechniky, ktoré sú elegantne integrované do nábytku, a teda vizuálne skryté.

Denná časť ponúka dostatok priestoru pre veľký jedálenský stôl aj pohodlnú sedačku s knižnicou. Nočnú časť tvorí spálňa rodičov so šatníkom a dve izby. Menšia výmera izieb si vyžadovala premyslené riešenie, vďaka čomu vznikli plnohodnotné priestory, ktoré ponúkajú dostatok úložného priestoru, miesto na oddych aj na prácu.

Celý interiér je navrhnutý tak, aby bol funkčný pre každodenný život rodiny, no zároveň pôsobil pokojne, nadčasovo a vyvážene.

navrhovaný stav

Previous
Previous

RST

Next
Next

Pri mýte